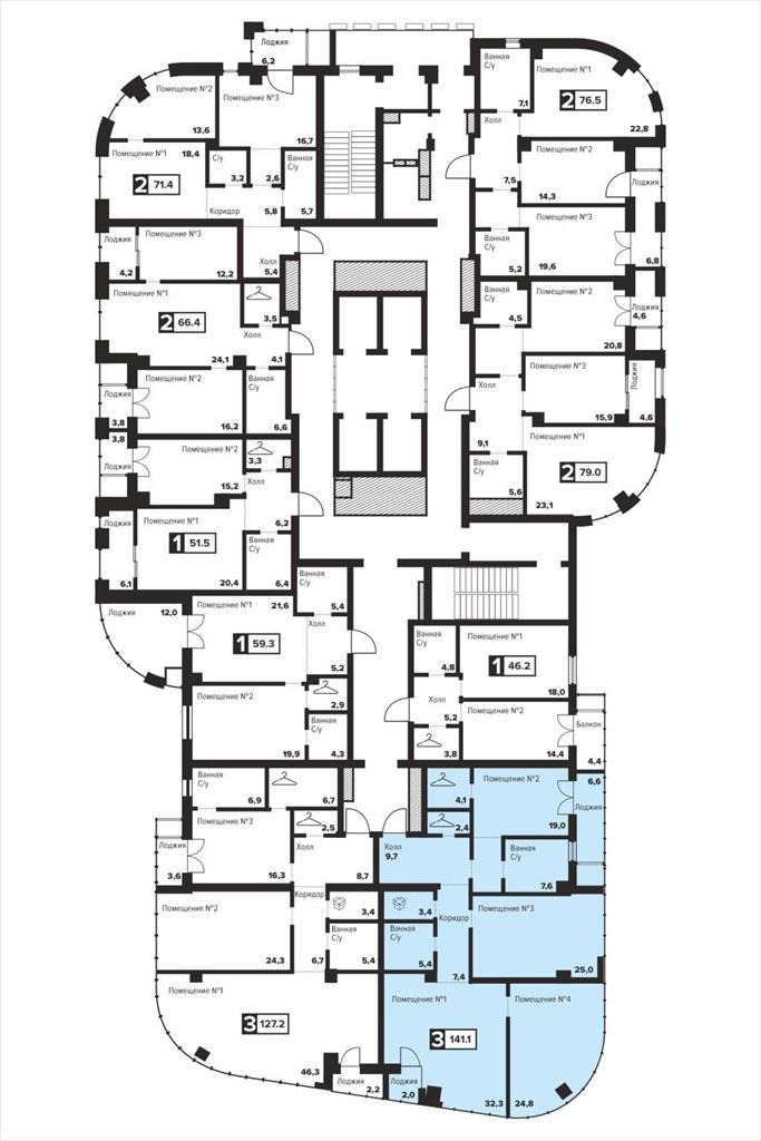
Трехкомнатная квартира 141,10 м2 по ул. Свободы 157А за 27373400 руб.

Трехкомнатная квартира по ул. Свободы, 157А в Челябинске
Цена 27 373 400 р. (194 000 р./м2)
Подать заявку на ипотеку
Адрес Свободы, 157А
Этаж 15/29
Площадь общая 141,1 м2, жилая 103,36 м2, кухни 32,3 м2
Кол-во комнат Трехкомнатная
Продаются 3 комн. апартаменты, площадью 141.1 м2 в монолитной новостройке. Возможен вариант покупки с использованием ипотечных средств. Жилая площадь 103.36 м2, кухня 32.3 м2, квартира без отделки. Квартира располагается на 15 этаже 29-этажного дома в ЖК Апартаменты ГОЛОС в сердце города. Застройщик - Голос. Девелопмент, сдача дома - IV квартал 2025 года, высота потолков 2.85 м. Парковка автомобилей - наземная. Обеспечение безопасности: видеонаблюдение, круглосуточная охрана, консьерж, противопожарная система, пропускная система. Инфраструктура: места для отдыха, коммерческие объекты. Проект, в котором продемонстрирован весь масштаб архитекторской мысли и дизайнерского мастерства. Мы собрали весь лучший опыт предыдущих проектов, пригласили итальянских дизайнеров для организации общественных пространств и применили самые современные разработки в области проектирования и сервиса. Выдержанные, но выполненные со вкусом фасады делают «ГОЛОС» жемчужиной центра. Проект, в котором продемонстрирован весь масштаб архитекторской мысли и дизайнерского мастерства. Мы собрали весь лучший опыт предыдущих проектов, пригласили итальянских дизайнеров для организации общественных пространств и применили самые современные разработки в области проектирования и сервиса. «ГОЛОС» расположен по улице Труда, прямо напротив КРК «Мегаполис», чтобы вы могли по максимуму использовать все возможности центра Челябинска. Аккредитованные банки: Совкомбанк, Альфа-Банк, Банк ДОМ. РФ, Банк ВТБ, Т-Банк, МКБ Позвоните и узнайте условия покупки прямо сейчас!
Описание дома
Этажность дома 29
Объявление № 23118306
Дата подачи:
2 августа 2025 г. 7:26
Дата обновления:
2 августа 2025 г. 5:00
Просмотров 66 Хотите продать быстрее?

Продавец
Отдел продаж
Показать номер телефона
Пожаловаться
Комментарии:
Добавить